Ērta vienstāva ģimenes māja ar izteikti funkcionālu plānojumu – nav pārlieku liela, toties ļoti ietilpīga. Te ir viss, kas vajadzīgs komfortablai ikdienai, padomāts arī par saimniecības vajadzībām, ļaujot viegli uzturēt māju tīru un kārtīgu. Augstie griesti piešķir mājai plašumu, savukārt lielā L-veida terase ļauj baudīt sauli visas dienas garumā.


Šeit māja veidota frēzbaļķi, izvēloties minimālistisko ZEN stūra savienojumu. To iespējams aizvietot ar tradicionālo dzeguļu stūra savienojumu vai arī frēzbaļķu konstrukciju vietā izvēlēties koka karkasa paneļus.

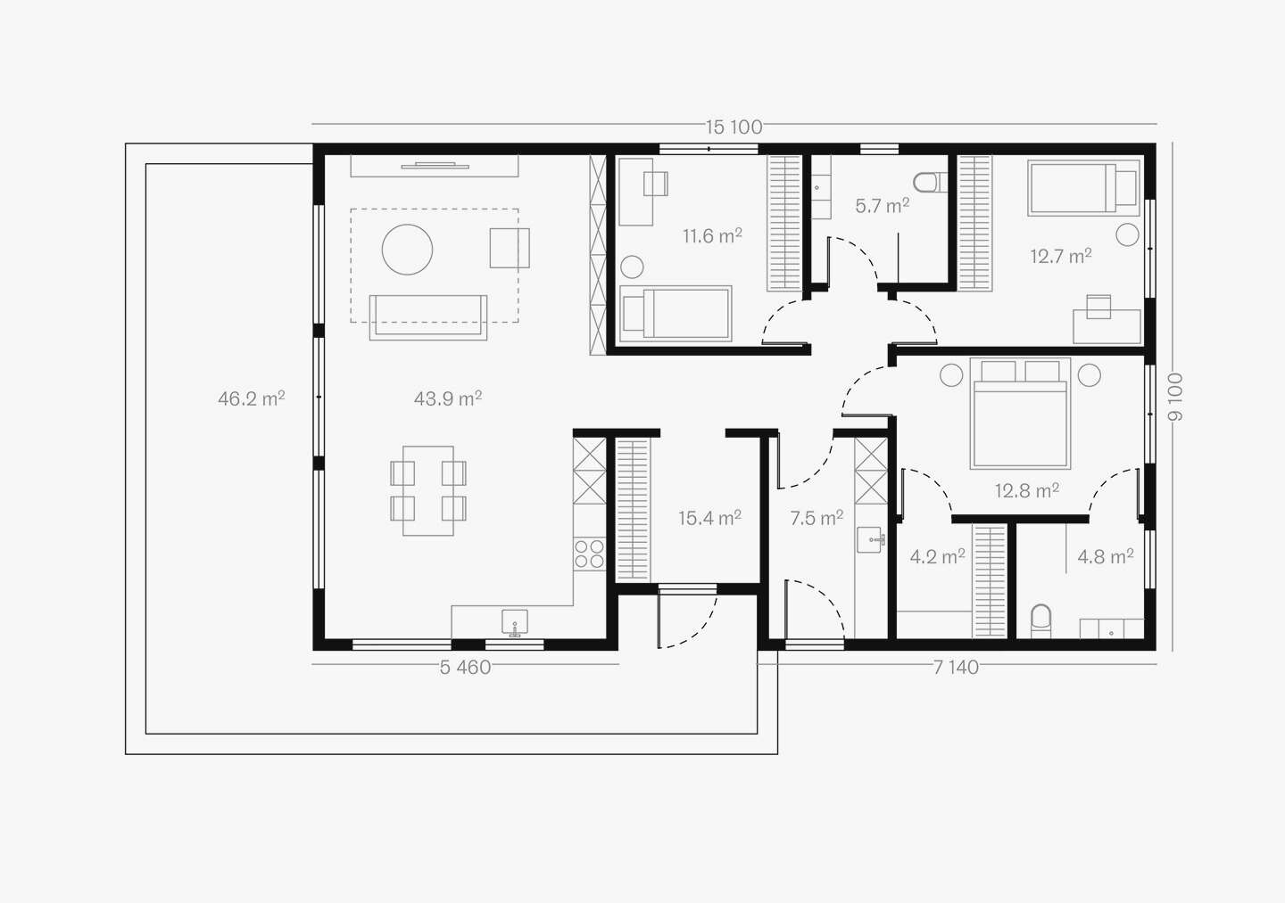
Mājā paredzētas trīs guļamistabas, divas vannas istabas, praktiska saimniecības telpa un plaša dzīvojamā zona, apvienota ar virtuvi un ar izeju uz terasi.
Frēzbaļķis vai koka karkass?
Koka karkasa izpildījumā mājas nesošās sienas ir no siltinātiem koka karkasa paneļiem ar dēļu fasādes apdari, savukārt frēzbaļķu izpildījumā nesošās sienas ir viscaur no koka - gan no iekšpuses, gan ārpuses. Nenenošās iekšsienas kā arī griestus pēc izvēles iespējams veidot vai nu ar koka dēļu apdari, pieskaņojoties nesošajām sienām, vai tieši pretēji - tās veidot koka karkasā ar riģipša vai cita kokam kontrastējoša materiāla apdari.
Sazinies ar mums
Interesējies par Dores mājām vai radušies jautājumi par sadarbības procesu? Sazinies, un mēs ar prieku atbildēsim uz visiem Taviem jautājumiem!
sales@dores.lv
+371 2777 22 50





